One-bedroom apartment in a great location in Pula!
ID Code1051-17
ID Code1051-17
- Location:
- Centar, Pula
- Transaction:
- For sale
- Realestate type:
- Apartment
- Total rooms:
- 1
- Bedrooms:
- 1
- Bathrooms:
- 1
- Floor:
- Ground floor
- Total floors:
- 2
- Price:
- 171.200€ (VAT included)
- Square size:
- 50,78 m2
Price
171.200€
Description
Istria, Pula
This new building is located in a great location not far from the city center. All necessary facilities are a few minutes' drive away, such as a fitness center, shopping center, school, kindergarten and beaches.
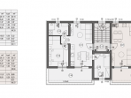
The apartment is located on the ground floor of the building. It consists of an entrance hall that leads us to the open space divided by the kitchen, living room and dining room with access to the terrace. There is also a bedroom and a bathroom. The apartment has a parking space and a storage room on the ground floor of the building. The total area of the apartment is 52.60m2.
If you are looking for a new building near all necessary facilities - look no further. This new building offers everything you need for a peaceful family life not far from the city center as well as all the accompanying facilities that adorn this city.
This new building is located in a great location not far from the city center. All necessary facilities are a few minutes' drive away, such as a fitness center, shopping center, school, kindergarten and beaches.
The apartment is located on the ground floor of the building. It consists of an entrance hall that leads us to the open space divided by the kitchen, living room and dining room with access to the terrace. There is also a bedroom and a bathroom. The apartment has a parking space and a storage room on the ground floor of the building. The total area of the apartment is 52.60m2.
If you are looking for a new building near all necessary facilities - look no further. This new building offers everything you need for a peaceful family life not far from the city center as well as all the accompanying facilities that adorn this city.
Visitors to this website acknowledge and accept that the language versions of advertising are generally prepared by machine and that the Broker is not responsible for any discrepancies in the language versions and/or possible inaccuracies of machine translations.
Additional info
- Registered for VAT purposes
- Turnkey price
- Construction year: 2025
- Energy class: Energy certificate in the process of obtaining
- Bathroom with window
- Kitchen
- Kitchen with window
- Storage room
- Hall
- Balcony:
- Modern: modern
- Elevator: No
- The real estate is for sale/rent: unfurnished
- Garden: private
- Parking space: Yes
- Covered parking place: No
- Garage: No
- Swimming pool: No
- Classical
- Underfloor heating
- Air condition
- Sea view: No
- Sea distance: more than 1km from the sea
- Near the center
- In a quiet street
- Near public transportation
- Close to shops
- Near the hospital
- On/Near Forest
SEND INQUIRY
- GSM
- +38552210824
- [email protected]
Send inquiry
POSITION ON THE MAP
© 2026 DIAMOND REAL ESTATE, All rights reserved, Privacy Policy| Terms of Use
Ova stranica koristi kolačiće za pružanje boljeg korisničkog iskustva, funkcionalnosti te anonimizirane statistike pristupa. Postavke kolačića možete kontrolirati i konfigurirati u Vašem web preglednika. Nastavkom pregleda web stranice slažete se sa korištenjem kolačića.
